詳細情報
價格:3億800萬日元(2024年12月10日前有效)
約合:1,453萬人民幣(2024年12月10日前有效)
位置:東京都澀谷區神宮前3-37-1
土地權利:永久產權
現狀:空室
建筑年代:2013年5月
總戶數:220戶
構造:鋼筋混凝土造地下2層附地上18層
樓層:5層
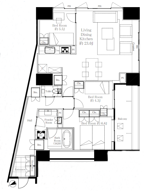
房產戶型:3室1廳(可改為3室1廳)
使用面積:100.21m²
陽臺面積:10.68㎡
管理費:32,060日元/月
修繕費:13,520日元/月
交通: ①東京地鐵銀座線【外苑前】站
②東京地鐵銀座線、千代田線、半藏門線【表參道】站
③JR山手線【原宿】站
推薦理由
神宮前公寓于2013年4月竣工,這是一棟20層塔樓公寓,樓里共有220戶,專屬面積為50平方米至120平方米,戶型從1LDK到3LDK不等,可容納各種家庭結構。
公寓房間內儲物空間充足,還配備地暖、空調、處理器、凈水器、洗碗機/烘干機、浴室取暖器/烘干機、送貨柜等設施。公共入口設有自動鎖系統,安全性得到了考慮。一樓入口大廳設有禮賓柜臺,提供多種服務,助您在市中心過上安全舒適的生活。住在這里允許攜帶寵物,但有一些規定,并且公寓樓內還設有寵物專用衛生間。
神宮前公寓地理位置優越,可輕松前往多條線路,最積極的車站是東京地鐵銀座線外苑前站,同時銀座線、千代田線、半藏門線表參道站步行也可到達。
公寓樓的禮賓服務支持高品質的生活方式,并響應廣泛的客戶要求。樓內三重保安(主入口、電梯、入口)全天 24 小時有人值班,這就是安全保障,讓您可以安全無憂地在這里度過美好的時光。公寓樓采用“隔震結構”,除了安全之外,還追求“安全”和“平安”,為您的家提供多層防護。
公寓樓周圍環繞著森林花園和水上花園等充滿自然氣息的環境,營造出一個輕松的空間。而在建筑內部,每個空間都擁有自己的奢華,包括帶壁爐的入口休息室、可以欣賞波濤洶涌的水景的水上休息室以及可以欣賞城市全景的空中甲板等等。
地理位置
外苑前站周圍遍布著時尚的餐廳和咖啡館,并以其秋季傳統的銀杏樹大道而聞名。從公寓步行即可輕松前往原宿和六本木地區。居留公寓附近最近的線路是銀座線,但表參道站和青山一丁目站也在步行范圍內,所以交通不會有任何問題。雖然白天在大都市的中心很熱鬧,但晚上卻很安靜,這是居住在這里的一個要點。營業到深夜的居酒屋和酒吧相對較少,晚上區域也比較安靜和安全。
從公寓步行即可到達的表參道,因圣誕節期間的櫸樹燈飾而聞名,還有明治神宮外苑、明治神宮棒球場、國立競技場等,全年都會舉辦各種活動,所以住在這里你不會感到無聊。
住在這里,日常看病也很方便。外苑前診所位于車站前,有四個醫療科室提供服務,并在周六提供醫療服務。車站周邊也有多家醫院,其中平岡診所距離公寓非常近。
說到外苑前,帶露臺座位的咖啡廳令人印象深刻。漢堡店“Shake Shack”的露臺氛圍也比外苑前銀杏并木的其他店更有時尚氣息,可能是因為周圍的銀杏樹,這里也成為了米其林極難預約的餐廳。

澀谷區:澀谷區位于東京23區的西南部。澀谷區是東京一個富有個性的行政區,商業活動興旺,尤其體現在澀谷車站忠犬八公出口處。著名的百貨店、時裝專賣店、飲食店、咖啡店、游技設施、風俗設施等密集如云,是與新宿同樣被列為“24小時不眠之街”的城區。擁有“年輕人之街”之美稱,使澀谷成為面向日本國內外各種流行的發祥地。
區內的松濤、広尾、代官山是人盡皆知的高級住宅地區。澀谷區的地價根據地區不同地價差異懸殊,便利性比較高又比較時尚的澀谷、原宿、代代木車站周圍的地價非常高。區內擁有青山學院,津田塾、聖心女子大等大學,針對學生群體的租賃需求十分穩定。澀谷區的單身生活者和沒有孩子的夫婦在住者大幅增加,這兩種群體大約占區內人口的約80%。因此,中古小戶型公寓需求十分旺盛。澀谷區的的地價根據地區差異十分明顯,最高價與最低價相差23倍。區內的房屋出租價格與土地價格相互平衡。
圖片總覽
公寓外景

公寓戶型
