| 地址 | 東京都立川市柴崎町3 | ||
| 價格 | 人民幣:3387萬 | 租金回報 | 6.63% |
| 建筑年代 | 2021年3月 | 建筑結構 | 鋼筋混凝土造 |
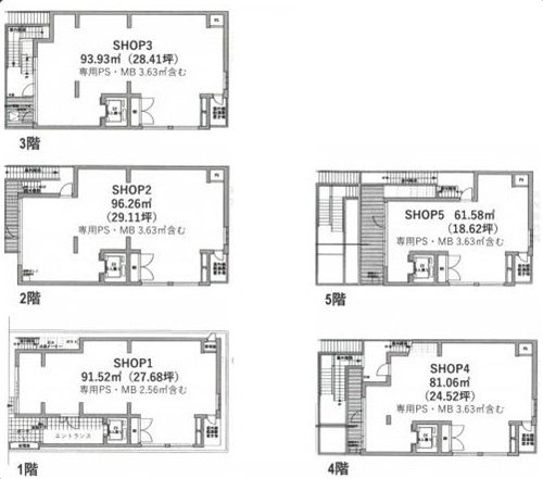
| 實際面積 | 455.36㎡ | 土地面積 | 146.55㎡ |
| 陽臺面積 | / | 車庫面積 | / |
| 總戶數 | 5戶 | 所在層 | 1-5 |
| 房型 | 事務所.店鋪 | 朝向 | / |
| 租賃情況 | / | 租金 | 約38,484,000日元/年/滿室 |
| 管理費 | / | 修繕費 | / |
| 建蔽率 | 80% | 容積率 | 300% |
| 用途地域 | 商業地域 | 土地權利 | 永久產權 |
| 交通 | ①JR中央線【立川】站徒步3分鐘 ②多摩都市モノレール線【立川南】站徒步2分鐘 | ||
1. 地理與基本信息:立川市地處東京都西部的多摩地區,北鄰東大和市,東接小平市,南連國立市,西靠昭島市。其面積約為24.36平方公里,截至2023年,人口約18萬。作為多摩地區的主要城市,立川市發展迅速。它不僅是鐵路和公交等交通樞紐,還是購物和娛樂的中心。
2. 主要區域及特色:立川站周邊是交通樞紐,JR中央線、青梅線、南武線和多摩都市單軌電車在此交匯。立川ルミネ是車站大樓,方便購物和用餐。イオンモール立川立飛是大型購物中心,提供從生活用品到時尚商品的各類選擇。昭和紀念公園是多摩地區最大的城市公園,四季景色各異,還會舉辦煙花大會和其他活動。高松是一個安靜的住宅區,自然環境優美。砂川是商業設施和企業的聚集地,立川市政府也位于此區域。
3. 文化與歷史:立川市自江戶時代就已存在,當時以立川宿而聞名。立川市鄉土博物館是了解當地歷史和文化的好去處。
4. 旅游景點:昭和紀念公園以其春天的櫻花和秋天的紅葉而聞名,深受家庭游客和自然愛好者的喜愛。立川市藝術文化中心(たましんRISURUホール)提供音樂會和戲劇等文化活動。國營昭和紀念公園的煙花大會每年夏天舉行,吸引大量游客。
5. 交通便利:立川市交通網絡發達,有JR中央線、南武線、青梅線和多摩都市單軌電車等鐵路線路。主要車站包括立川站、西立川站和立川南站等。市內巴士線路豐富,方便市民出行。
6. 生活環境優越:教育資源從幼兒園到高中一應俱全,立川市也是著名的文教地區,擁有國立音樂大學和電氣通信大學等高校。醫療設施完備,如立川中央醫院和東京醫科大學醫院等。商業設施集中在立川站周邊,超市、百貨公司和專賣店齊全,生活便利。
7. 活動與節日:立川祭每年秋天舉行,充滿地方活力。昭和紀念公園煙花大會是夏天的一大盛事,熱鬧非凡。
8. 現代的立川市:立川市是商業與文化融合的城市,特別是立川站周邊的再開發,帶來了新的商業和公共設施。同時,立川市自然環境豐富,昭和紀念公園是城市的標志性存在。
總結:立川市是多摩地區的交通樞紐和購物娛樂中心,自然與城市功能平衡和諧,是一個適合居住和旅游的魅力區域。其優質的教育環境也深受學生和家庭的喜愛。如果您想了解更多特定區域或旅游景點的詳細信息,歡迎咨詢。
您會在一個工作日內得到置業顧問的聯絡




