| 地址 | 日本神奈川縣橫濱市中區本牧元町35 | ||
| 價格 | 人民幣:215萬 | 租金回報 | / |
| 建筑年代 | 2002年8月 | 建筑結構 | 鋼筋混凝土造 |
| 實際面積 | 75.36㎡ | 土地面積 | / |
| 陽臺面積 | 12.59㎡ | 車庫面積 | / |
| 總戶數 | 30戶 | 所在層 | 3層 |
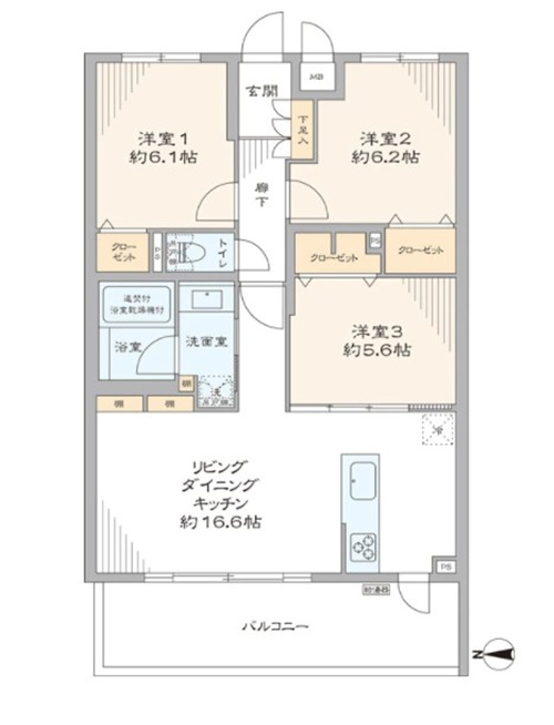
| 房型 | 3室1廳 | 朝向 | / |
| 租賃情況 | / | 租金 | / |
| 管理費 | 23,360日元/月 | 修繕費 | 16,580日元/月 |
| 建蔽率 | / | 容積率 | / |
| 用途地域 | 準工業地域 | 土地權利 | 永久產權 |
| 交通 | みなとみらい線【元町.中華街】站乘公交【本牧元町】站徒步1分鐘 | ||
営業部
2002年8月建成,永久產權,符合新抗震標準。位于日本神奈川縣橫濱市中區,眾多公交車可以利用,包括橫濱站方向,19分鐘可以到みなとみらい線【元町.中華街】站。周邊與生活相關的便利設施豐富,全家便利店徒步4分鐘,超市徒步12分鐘,郵局徒步8分鐘,醫院徒步9分鐘,還有多處公園均在步行11分鐘左右。公寓有門禁,快遞箱,停車場免費使用,物件位于3層,3室1廳,明亮的地板很容易搭配家具,在客廳設置的架子上可以擺放小物件,全居室有收納,開放式廚房,LIXIL制系統廚具,松下制洗面臺,TOTO制浴缸,LIXIL馬桶,新設照明器具及空調,更新地板,壁紙等生活配套設備。詳情歡迎咨詢。
其他地區 其他
4 地址:日本神奈川縣橫濱市中區本牧元町35
交通:みなとみらい線【元町.中華街】站乘公交【本牧元町】站徒步1分鐘
您會在一個工作日內得到置業顧問的聯絡




