| 地址 | 東京都文京區小石川2 | ||
| 價格 | 人民幣:821萬 | 租金回報 | / |
| 建筑年代 | 2007年11月 | 建筑結構 | 鋼筋混凝土造 |
| 實際面積 | 92.54㎡ | 土地面積 | / |
| 陽臺面積 | 有 | 車庫面積 | / |
| 總戶數 | 34戶 | 所在層 | 9層 |
| 房型 | 2室1廳 | 朝向 | / |
| 租賃情況 | / | 租金 | / |
| 管理費 | 22,000日元/月 | 修繕費 | 6,750日元/月 |
| 建蔽率 | / | 容積率 | / |
| 用途地域 | 第一種中高層住居專用地域 | 土地權利 | 永久產權 |
| 交通 | ①東京メトロ南北線.丸の內線【后樂園】站徒步9分鐘 ②都營大江戶線.三田線【春日】站徒步9分鐘 ③東京メトロ丸の內線【茗荷谷】站徒步16分鐘 | ||
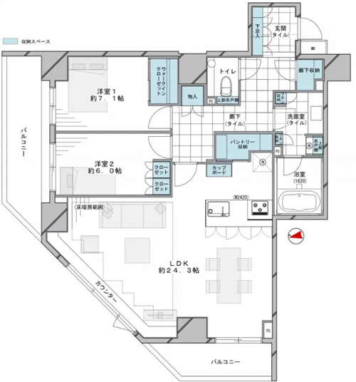
2007年11月建成,永久產權,符合新抗震標準。位于東京都文京區小石川2丁目,4線3站可以利用,距最近【后樂園】站、【春日】站均徒步9分鐘,區政府就在春日車站附近,辦理手續很方便。公寓樓地上10層付地下2層,總戶數34戶的小規模公寓,步行5分鐘內有便利店,超市,區立中.小學校,另外周邊還有集于購物.娛樂.溫泉的商業設施。公寓樓入口處設有門禁,有快遞箱,停車位,可飼養寵物,公寓位于9層,2室1廳角住戶,客廳和各居室都可以通向陽臺,更新了生活配套設備,客餐廳有地暖,對面開放式廚房,有食品餐具收納柜及可步入式衣帽間,衛浴分離,詳情歡迎咨詢。海外客戶可以申請日本銀行貸款購房,目前有兩種方式:1.需要在日本設立公司,以法人名義購買,貸款額度約60-70%、還款周期25-35年、貸款利率1.5%起。2.個人名義購買,海外客戶可以申請日本個人抵押貸款購房,不需要設立公司,貸款額度約50-60%,還款周期15-25年,貸款年齡65歲以內,貸款額度不能低于2000萬日元,貸款利率2.7%起。
1. 地理與基本信息:文京區位于東京都北部,北鄰豐島區,東接臺東區,南靠千代田區,西毗新宿區。面積約11.29平方公里,2023年人口約23萬,是頗受歡迎的寧靜住宅區。這里匯聚了眾多大學和教育機構,也被稱為“文教地區”,且歷史遺跡和公園資源豐富。
2. 主要區域及其特色
• 本鄉(Hongō):東京大學是日本頂尖學府,部分校區位于文京區。湯島天滿宮供奉著學問之神菅原道真,也是賞梅勝地。
• 小石川(Koishikawa):小石川植物園建于17世紀,是日本最古老的植物園,兼具研究和教育功能。后樂園是留存著江戶時代風貌的大名庭園,四季風景各異。
• 大冢(ōtsuka):這里有熱鬧的商店街和餐飲店,設有東京地鐵丸之內線站點。
• 白山(Hakusan):白山神社歷史悠久,深受當地居民喜愛。白山通是商店街,支撐著當地居民的生活。
• 春日(Kasuga):東京巨蛋是職業棒球隊“讀賣巨人隊”的主場,也常舉辦演唱會和各類活動。后樂園游樂園是東京巨蛋城的一部分,可供游玩娛樂。
3. 文化與歷史:文京區自江戶時代起就是文人雅士匯聚的寧靜之地,曾有許多文化名人在此居住。文京區立博物館可讓人們了解該區的歷史和文化。
4. 觀光景點:根津神社以杜鵑花聞名,尤其是春季的杜鵑花祭值得一看。六義園是江戶時代的名園,作為池泉回游式庭園景色優美。舊巖崎邸庭園曾是三菱財閥創始人巖崎家族的宅邸,現已對公眾開放。
5. 交通出行:鐵路有東京地鐵丸之內線、有樂町線、都營大江戶線、東京地鐵千代田線等。主要車站有本鄉三丁目站、春日站、茗荷谷站、白山站等。區內主要區域公交線路完備。
6. 生活環境:教育資源豐富,從幼兒園到大學的教育機構一應俱全,如東京大學、早稻田大學、御茶水女子大學等。醫療設施完善,有東京大學醫學部附屬醫院、順天堂大學醫學部附屬醫院等。商業方面,本鄉通沿線和大冢的商店街等滿足日常生活所需。
7. 活動與節慶:根津杜鵑花祭在每年4月下旬至5月初舉行,吸引眾多游客。文京區祭是當地居民聚集的大型活動,可體驗文化和體育活動。
8. 現代的文京區:文京區教育和文化氛圍濃厚,作為居住環境也備受青睞,高級住宅區較多。在再開發過程中,既尊重歷史又不斷增添新設施。
總結:文京區作為學問和文化的發源地而聞名,環境寧靜宜居。這里有眾多歷史庭園、神社寺廟和教育機構,為生活增添了豐富內涵。另一方面,東京巨蛋周邊是娛樂中心,使文京區呈現出多樣的面貌。如果您想了解特定區域或觀光景點的更多信息,歡迎告知。
您會在一個工作日內得到置業顧問的聯絡




