| 地址 | 東京都港區 | ||
| 價格 | 人民幣:1138萬 | 租金回報 | / |
| 建筑年代 | 2001年5月 | 建筑結構 | 鋼筋混凝土造 |
| 實際面積 | 115.43㎡ | 土地面積 | / |
| 陽臺面積 | 10.38㎡ | 車庫面積 | / |
| 總戶數 | 41戶 | 所在層 | 4層 |
| 房型 | 3室1廳 | 朝向 | / |
| 租賃情況 | / | 租金 | / |
| 管理費 | 19,300日元/月 | 修繕費 | 33,480日元/月 |
| 建蔽率 | / | 容積率 | / |
| 用途地域 | 準工業地域 | 土地權利 | 永久產權 |
| 交通 | ①東京地下鐵南北線.東京地下鐵三田線【白金高輪】站 ②東京地下鐵南北線.都營大江戶線【麻布十番】站 | ||
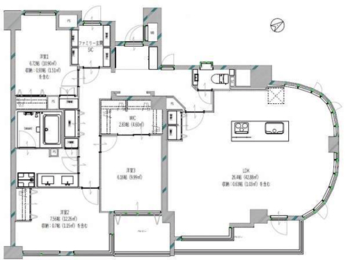
2001年5月建成,永久產權,符合新抗震標準。位于東京都港區幽靜的住宅街,3線2站可以利用,近鄰【白金高輪】站、【麻布十番】站,另外也有公交車可以利用,可直通澀谷、新橋。附近有超市、便利店、商店街、保育園等日常生活所需的各種設施。公寓樓地上7層,設置門禁、可飼養寵物。公寓位于4層,3室1廳,室內完成翻新,島廚房,步入式衣帽間等充實的收納,雙洗臉池,衛浴獨立,詳情歡迎咨詢。海外客戶可以申請日本銀行貸款購房,目前有兩種方式:1.需要在日本設立公司,以法人名義購買,貸款額度約60-70%、還款周期25-35年、貸款利率1.5%起。2.個人名義購買,海外客戶可以申請日本個人抵押貸款購房,不需要設立公司,貸款額度約50-60%,還款周期15-25年,貸款年齡65歲以內,貸款額度不能低于2000萬日元,貸款利率2.7%起。
No.11
1. 地理與基本信息:港區地處東京都中央,東臨東京灣,北接千代田區與中央區,東鄰江東區,西與澀谷區和品川區接壤。全區面積約20.37平方公里,截至2023年,人口約26萬,其中外國居民眾多,國際化氛圍濃厚。這里高樓林立,現代建筑密集,是東京的核心商務區,同時也保留了豐富的歷史遺跡和綠地,展現出獨特的多元性。
2. 主要區域及其特色
• 六本木(Roppongi):國際化氛圍濃厚,吸引了大量外國游客和駐外人員。著名景點包括六本木之丘(含觀景臺和美術館)、東京中城和森美術館,夜生活豐富,酒吧和俱樂部云集。
• 麻布(Azabu):以高級住宅區聞名,眾多大使館坐落于此。麻布十番商店街是當地居民和游客的熱門打卡地,傳統店鋪與現代咖啡館和諧共存。
• 赤坂(Akasaka):政治和商業中心,靠近國會議事堂和首相官邸。擁有赤坂Sakas(TBS廣播中心)和多家高級酒店,餐飲選擇豐富。
• 臺場(Odaiba):東京灣上的人工島,人氣觀光勝地。著名景點有彩虹大橋、臺場購物廣場(含實物大高達像)、臺場海濱公園和teamLab無界美術館,購物和娛樂設施齊全。
• 品川(Shinagawa):新干線經停站品川站所在地,交通樞紐,同時也是重要的商業區,高樓林立。
• 白金?高輪(Shirokane/Takanawa):高級住宅區,環境靜謐,分布著自然教育園和美術館等文化場所。
• 汐留?新橋(Shiodome/Shimbashi):汐留地區再開發成果顯著,辦公樓和酒店密集;新橋則以上班族聚集區著稱,餐飲店眾多。
3. 觀光景點與文化:港區擁有眾多知名景點,吸引著來自國內外的游客。東京塔是港區的象征,觀景臺可俯瞰城市美景;芝公園和增上寺緊鄰東京塔,歷史寺院與自然景觀相得益彰;愛宕神社以“出世之石段”聞名;teamLab無界美術館(位于臺場)以數字藝術享譽全球;六本木之丘觀景臺則是欣賞東京夜景和富士山的絕佳地點。
4. 交通便利:港區交通網絡發達,方便前往東京市內及周邊地區。地鐵線路包括東京地鐵(銀座線、丸之內線、日比谷線等)、都營地鐵、JR山手線和百合海鷗號等。主要車站有品川站、新橋站、浜松町站、六本木站、麻布十番站和臺場站等。此外,前往羽田機場和成田機場也十分便捷,可乘坐單軌電車和機場巴士。
5. 經濟與商業:作為日本的代表性商業區,港區匯聚了眾多國內外企業總部。六本木之丘、東京中城和汐留城市中心等辦公樓群是經濟活動的核心地帶,IT、媒體、金融和咨詢等產業尤為發達。
6. 國際化氛圍:港區內設有約90個國家的大使館,國際化氛圍濃厚。外國居民眾多,國際學校和多語言服務設施齊全。在六本木和麻布等區域,英語和其他語言的使用也非常普遍。
7. 生活環境:教育資源豐富,國際學校和知名私立學校眾多,深受有子女家庭的青睞。醫療設施完備,擁有國際醫療福祉大學三田醫院和東京慈惠會醫科大學附屬醫院等高質量醫療機構。綠地公園豐富,如芝公園、有棲川宮紀念公園和自然教育園等,提供親近自然的好去處。然而,由于高級住宅區和觀光景點眾多,港區的房租和物價相對較高。
8. 活動與節慶:麻布十番納涼祭每年夏季舉行,有攤位和表演等活動;東京塔會根據季節和活動進行不同的燈光秀,深受游客喜愛;夏季,臺場還會舉辦盛大的煙花大會。
總結:東京港區融合了商業、觀光、文化和國際化元素,是感受東京都市魅力的絕佳之地。對于游客來說,這里景點豐富多樣;對于居民而言,生活環境優越。不過,由于較高的物價和房租,有意在此居住的人士需提前做好預算規劃。
您會在一個工作日內得到置業顧問的聯絡




